新作|赫设计:打造书店的沉浸式体验 商业空间的非商业 首
2025-10-24 20:48
AuraStudio
x设计将空间划分为错落分布的功能区块,塑造出丰富的空间层次,既避免了大面积平面的单调,又通过立体落差引导探索欲,使顾客在行走间自然解锁不同阅读场景。
赫设计
空间摒弃商业化的营销式设计,以
“去设计化” 姿态传递真诚:让阅读回归本质,让空间成为承载思想的容器。
空间概览
© AuraStudio
这种设计策略不仅在材质碰撞间构建出独特的美学场域,更以去商业化的语境,重新诠释商业空间的人文内核
—— 以质朴设计呼应精神需求,让每个角落都成为读者与书籍、空间对话的诗意媒介。在这个书店空间中,设计以 “反商业化制式” 为核心策略,通过去模板化的
DIY
实践,重构商业空间的人文叙事。步入其中,走道、窗户与书架以有机序列穿插,形成自然流动的空间动线,消弭商业空间的刻意引导感。
在材质碰撞间构建出独特的美学场域
© AuraStudio
大量木质材料的运用成为视觉与体验的双重锚点:温润的板材构建墙体、座位,以天然肌理与暖调色泽,编织出温馨安定的阅读氛围,唤醒人们对纯粹阅读场景的情感记忆。铝型材与板材组合的书架、装置,则以工业化质感注入现代美学基因,在刚柔并济间打破商业空间的标准化桎梏。
大量木质材料的运用成为视觉与体验的双重锚点
© AuraStudio
深棕木质吧台的天然肌理与温润色调成为视觉焦点,沉稳质感既承载咖啡制作的功能属性,又以亲和姿态消弭商业空间的距离感,让材质本真成为体验媒介。
深棕木质吧台
© AuraStudio
顶部异形结构突破常规制式,通过不规则几何形态构建动态视觉层次,与木质吧台的稳重形成刚柔张力,既保留手工造物的随性温度,又暗含空间美学的精巧构思。
不规则几何形态构建动态视觉层次
© AuraStudio
顶面与墙身布满个性贴纸、插画海报,从趣味图案到人文艺术创作,以碎片化拼贴形式赋予空间叙事性。诉说多元的故事篇章,构建起与消费者情感共鸣的纽带。
顶面与墙身布满个性贴纸、插画海报
© AuraStudio
整个吧台区打造出兼具功能属性与精神内核的复合空间,是一个承载创意、故事与情感交流的场域,重新定义了商业化空间中
“人、物、境” 的共生关系。
顶面与墙身布满个性贴纸、插画海报
© AuraStudio
一楼空间以自然材质对话现代功能,重新定义商业空间的体验维度。铝质书架以工业化型材构建陈列体系,与温润木质元素形成刚柔碰撞,在材质对话间赋予空间通透的呼吸感。
铝质书架以工业化型材构建陈列体系
© AuraStudio
书籍陈列突破传统制式,倾斜木架、分层展架的错落组合,既引导浏览动线,又让每本书籍化作空间装饰的艺术单元,激活文化叙事的动态表达。
书籍陈列突破传统制式
© AuraStudio
中部挑空设计巧妙拉升层高,消弭空间压迫感,构建开阔立体的层次关系。上层空间与一楼形成视觉互动,增强纵深感的同时,为顾客创造多元视角的探索体验。
中部挑空设计
© AuraStudio
水泥地面、海洋板墙顶与乳白色调自然交融,最大化呈现材质本真色泽,摒弃冗余装饰,以
“少即是多” 的美学逻辑,让顾客沉浸于纯粹的阅读氛围。
水泥地面、海洋板墙顶与乳白色调自然交融
© AuraStudio
顾客游走其间,消费行为转化为与书籍、空间、材质的深度对话,在简洁而丰富的视觉体验中,感受自然本真与文化张力,重新诠释
“商业空间不止于交易,更在于情感与精神的共鸣”。
书籍、空间、材质的深度对话
© AuraStudio
左右两侧楼梯作为垂直动线枢纽,不仅串联起上下层空间,更以开放式布局消弭楼层界限,形成一二楼视觉互通的互动场域,顾客于二楼可俯瞰一楼书海陈列,反之亦然,这种通透的空间对话极大增强了场景参与感。二楼两侧阅读区形成相对独立又彼此呼应的阅读单元,既满足私密性需求,又通过开放视角保持空间整体联动。
楼梯作为垂直动线枢纽
© AuraStudio
设计将空间划分为错落分布的功能区块,塑造出丰富的空间层次,既避免了大面积平面的单调,又通过立体落差引导探索欲,使顾客在行走间自然解锁不同阅读场景。
细部
© AuraS
tudio
1.
整体上通过大量原木材质搭配乳白色墙面,强调空间的自然氛围,通过材质营造自然基调;
2.
充分利用非方正户型的优点打造丰富的动线,营造趣味视线;
3.
部分做挑空设计,营造开阔感与纵深感;
4.
通过一二楼分区优化动线,延长顾客停留时间;开放式互动设计强化空间趣味性,契合当代消费者对 “可探索、可社交” 商业场景的需求。
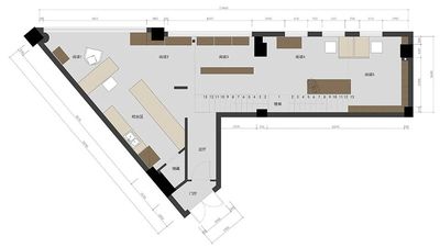
项目图纸
一层平面
赫设计
二层平面
赫设计
项目名称:商业空间的非商业
项目类型:室内设计
设计方:赫设计
公司网站:
hurr.design
联系邮箱:
hurrdesign@qq.com
项目设计:陆阳
完成年份:
2025
设计团队:陆阳
项目地址:江苏无锡
建筑面积:
90
摄影版权:
AuraStudio










