泰国W住宅扩建

2025-10-20 21:00
 
DOF Sky | Ground
W住宅二期整体使用清水混凝土,从室外自然延伸至室内墙面,形成统一的空间质感。
感谢
IDIN Architects

                            
该项目是
住宅一期的扩建,源于业主对使用需求的扩大。业主希望将新宅作为主要居所,并将原有的
住宅一期改造成客房。设计的挑战来自业主的愿望——他们希望新住宅为单层建筑,让家人之间在一天的生活中都能彼此看见、互动。同时,业主十分喜爱原住宅屋顶的山景,并希望保留给两头宠物奶牛的活动空间,使它们能够在庭院中行走与吃草。

                            

                            
住宅外观
© DOF Sky | Ground
设计通过将这座单层住宅整体抬升至
米高,达到原住宅屋顶的高度,从而巧妙地满足了这些需求。建筑仿佛被“架空”于空中,形成类似两层的效果,而地面层则作为花园与开放空间,供奶牛活动。

                            
设计策略
© IDIN Architects

                            

                            

                            
架空的单层住宅
© DOF Sky | Ground

                            

                            
地面层则作为花园与开放空间,供奶牛活动
© DOF Sky | Ground
住宅的上层设有环绕整栋建筑的阳台,可实现
360
度全景视野,让居住者在一天的不同时刻环行漫步、欣赏景致。泳池也被设置在这一层,与主要生活空间并列。

                            
实现全景视野的阳台
© DOF Sky | Ground

                            
实现全景视野的阳台
© DOF Sky | Ground

                            

                            
与主要生活空间并列的泳池
© DOF Sky | Ground
建筑采用双层立面系统:内层为玻璃,外层为可开启或闭合的木百叶围合面板,以调节通透与私密的平衡。整个结构由两道大型混凝土承重墙支撑,墙体采用大跨度设计,地面结构则使用格栅板体系,不仅解决了技术难题,也为住宅带来独特的建筑特征。

                            

                            

                            
结构由两道大型混凝土承重墙支撑
© DOF Sky | Ground

                            

                            
清水混凝土从室外自然延伸至室内墙面
© DOF Sky | Ground
住宅二期整体使用清水混凝土,从室外自然延伸至室内墙面,形成统一的空间质感。整体氛围以温暖色调为主,木材选用原木色枫木,纹理自然清晰,与混凝土形成和谐对比。厨房区域则采用印度绿石,为空间增添现代感。

                            

                            
整体氛围以温暖色调为主
© DOF Sky | Ground

                            

                            
印度绿石吧台成为空间核心
© DOF Sky | Ground

                            
印度绿石吧台成为空间核心
© DOF Sky | Ground

                            
可在此全天相聚、交流与放松
© DOF Sky | Ground

                            

                            
卧室空间
© DOF Sky | Ground
在中央起居区,设计了一张超大沙发,可灵活调整组合以适应不同活动,使其成为全屋的核心场所
——家人可在此全天相聚、交流与放松。

                            

                            

                            
住宅夜景
© DOF Sky | Ground
项目图纸

                            
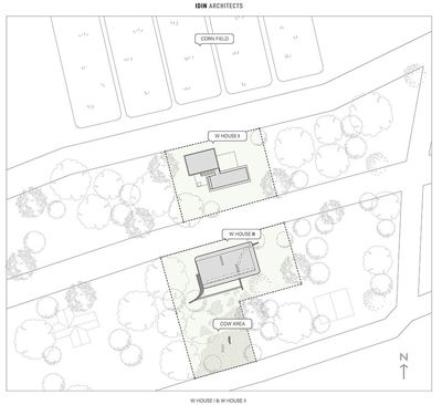
场地平面
© IDIN Architects

                            
一层平面
© IDIN Architects

                            
二层平面
© IDIN Architects

                            
▲三
层平面
© IDIN Architects

                            
立面图
© IDIN Architects

                            

                            

                            
剖面图
© IDIN Architects
PROJECT TITLE: W HOUSE II
PROJECT TYPE: Private House
LOCATION: Pak Chong, Nakorn Ratchasima, Thailand
ADDRESS: Moo 10, Green Hill Valley, Pak Chong Subdistrict, Pak Chong District, Nakhon Ratchasima 30130, Thailand
CONSTRUCTION: 03/2022-11/2024
OPENING YEAR: 2024
USABLE AREA (SQM): 300
OWNER: Wittaya Warunchaichana
ARCHITECT: IDIN Architects
INTERIOR DESIGNER: IDIN Architects
LANDSCAPE ARCHITECT: P_do Landscape Studio
CONTRACTOR: WIMUTTI Construction Limited Partnership
PHOTOGRAPHER: DOF Sky | Ground

                            
   

采集分享

举报

Jasmine

什么也没写

709 作品/ 0 人气

  • 别默默的看了,快登录帮我评论一下吧!:)

    注册 登录

    更多评论

    推荐作品


    相关文章

    下载

    加入到画夹管理

    添加画夹

    提示

    右键保存、高清大图仅支持VIP会员
    名师作品集【专享】
    全网名师最多、更新最快、作品最全
    作品库【无限查阅、一键下载】
    全球最大室内作品库,超33万部
    精品资料【下载】
    全年精品资料更新超1000部
    灵感搜索【原图下载】
    中文搜索全球顶尖案例灵感图
    设计师生活馆【内购价】
    5大电商平台官方合作,专享内购价
    CAD库【模型下载】
    cad单体模型库精准搜索查找下载
    免广告打扰【屏蔽】
    屏蔽全站广告,享受纯净体验
    3D模型【送199币值199元】
    分享全网最新精品3D模型
    名师与资料完善后,价格涨至699元/年