减法设计,感知回归_20251013
2025-10-13 19:24
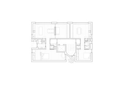
这所房子重新思考了在高密度城市环境中的建筑如何能够提供宁静、专注以及与自然的连接,而无需求助于与世隔绝或造成视觉混乱。它挑战了以更多房间、更高密度或装饰性饰面来定义价值的观念。相反,它优先考虑的是实际的生活质量和感官上的清晰度。其静默的创新之处在于每一平方米都被有意地利用。一个半圆形的楼梯平台减少了未被使用的空间,它作为一个朝向街道的视觉标志物,并开辟了一个北向开口,既框景了建筑自身的几何形态,又柔和地引入了光线且不牺牲私密性。南向的方位指导了整个空间的布局。生活区被布置在最能充分利用阳光和框景茂密山坡的位置,而私人卧室则朝北布置,免受噪音和强光的干扰
通过省略直接照明,天花板避免了视觉噪音。取而代之的是,间接灯光从天花板与墙体的接合处轻柔地洗墙而下,营造出轻松的氛围。这也让居住者可以用自己选择的灯具和家具来个性化空间。这所房子的创新并非技术性的,而是空间与体验层面的。它将建筑简化至其本质同时将主导权交还给使用者,展示了设计如何以静默的精确性来回应复杂性,创造一个可以让人慢下来、感到踏实并塑造自己生活方式的地方
Thanks for watching. See you next time!
举报
别默默的看了,快登录帮我评论一下吧!:)
注册
登录
更多评论
相关文章
-
描边风设计中,最容易犯的8种问题分析
2018年走过了四分之一,LOGO设计趋势也清晰了LOGO设计
-
描边风设计中,最容易犯的8种问题分析
2018年走过了四分之一,LOGO设计趋势也清晰了LOGO设计
-
描边风设计中,最容易犯的8种问题分析
2018年走过了四分之一,LOGO设计趋势也清晰了LOGO设计