penthouse js in saigon by t3
2017-10-04 18:10
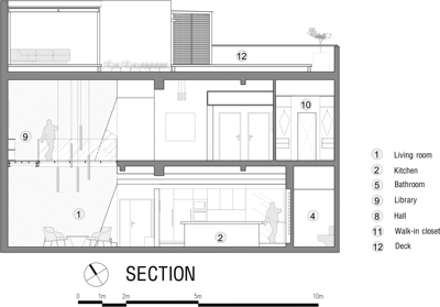
一位西方客户要求T3设计他在胡志明市的顶层公寓。客户是非常开放的头脑和有明确的想法,他想要什么,T3已经设计了整个布局的阁楼分布在3个不同的层次(2层公寓1层屋顶)。最终的结果是现代工业设计,具有艺术触觉和非常高级的装饰,适用于所有领域:墙(蜡混凝土、灰泥、刚毛钢和水泥板)、地板(抛光混凝土、硬木地板)和天花板(硬木和现有混凝土板)…。在大屋顶上,T3增加了一个木制甲板(以获得更好的景色和美好的感觉),当然还有许多热带植物来带来大自然。不幸的是,建筑管理团队不允许T3在屋顶…上添加一个Pergola以给屋顶带来阴影。照明是部分定制的;家具要么是定制的,要么是由T3和客户提供的,以获得强大的室内一致性。T3还选择了一些艺术作品(洛朗·威尔的摄影作品)和地毯(路易斯·德·普尔特雷)。结果是一个非常独特的阁楼,符合客户的期望,一个非常合理的预算(约1.000美元/平方米的所有室内和屋顶景观)。
Firm T3 ARCHITECTURE ASIA
Type Residential › Apartment
STATUS Built
YEAR 2017
SIZE 3000 sqft - 5000 sqft
BUDGET $100K - 500K
keywords:architecture, architecture news, interiors, interior design, portfolio, spec, brands, marketplace, products Penthouse JS in Saigon by T3
关键词:建筑,建筑新闻,室内设计,组合,规格,品牌,市场,产品顶层JS在西贡由T3
一位西方客户要求T3设计他在胡志明市的顶层公寓。客户很开放,他对自己想要的东西很清楚,T3有自己的设计.

PintereAI








