cabinets of curiousities
2016-06-08 11:58
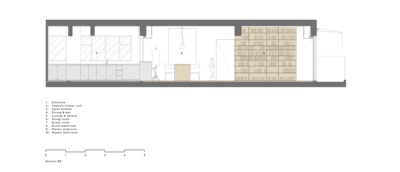
BeanBuro摧毁了三间卧室的内墙,公寓面积约2000平方英尺,将一条黑暗的走廊布局变成了一个光线充足的开放空间。该计划位于香港薄扶林角大厦。
这份简报旨在创造一个清新而平静的空间,让一对比利时和中国的夫妇在海边的公寓感觉很自然。其概念是通过使用一系列可折叠的分区来消除尽可能多的分区,从而消除所有死区。业余爱好房可以划分为带有沙发床的私人客房,或者大部分时间保持开放,以允许最大限度的自然日光透过公寓。
高品质的欧洲天然比利时木材,用现代的色调清洗,用来建造所有细木工和地板。一套高度全高的木柜,带有精致的展示壁龛图案,从入口开始,延伸到开放式厨房的后面,通过将门厅休息室、就餐区和厨房连接在一起,形成了一个连续的背景。木材橱柜提供高密度储藏室,如鞋架,厨房用具,设备,以及在户外运动齿轮和自行车在衣柜散步。一些橱柜里有漂亮的东西,包括西方古籍和中国当代艺术。
全高度木材橱柜精心设计与错综复杂的阴影缺口和沟槽,以创造一个有趣的模式。以前的走廊效应已经完全消除了。新开辟的空间允许体积木材书架折叠进入流通方式,然后转化为工作研究。这个书架是艺术和古董的精心策划的展览。整个高度的镜子排列在窗台上,以延伸海洋的全景,最大限度地利用自然日光进入公寓最深的空间。滚筒百叶窗可以电子控制,现场照明控制是用来创造一个范围的气氛一整天,以对应变化的颜色的地平线。
Firm Bean Buro
Type Residential › Apartment
STATUS Built
YEAR 2016
SIZE 1000 sqft - 3000 sqft
keywords:architecture, architecture news, interiors, interior design, portfolio, spec, brands, marketplace, products Cabinets of Curiosities
关键词:建筑,建筑新闻,室内设计,组合,规格,品牌,市场,产品橱柜
BeanBuro已经拆除了大约2000平方英尺的三间卧室公寓的内墙,把一个黑暗的走廊布局变成了一个充满光线的房间.

PintereAI








