Elektra Bakery by Studioprototype

2011-01-11 10:17

                            

                            
照片(Spyros Palouki)的好东西是小包装的,或者我应该说是商店!希腊的StudioPrototype最近完成了在希腊Edessa的一家家庭经营的面包店的翻修工作。StudioPrototype公司的负责人给了它重新定义Elektra面包店连锁店外观的机会,这是它的试点项目。埃德莎的主要步行街,仅占35平方米的建筑师,要求重新定义的程序,以及它的外观。
照片(Spyros Paloukis)
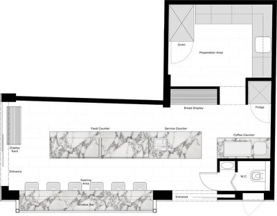
必须与狭长的直线平面图一起工作,开发了精确的规划和布局。重点是建造一个长方形卡拉拉阿拉贝斯卡托大理石食品和服务柜台,该柜台已放置在直线平面图的中心,以在面包房的空间布局中强调重点。同样的白色卡拉拉大理石也被用于建造灰色纹理的大理石。紧靠窗户的一个立面上的座席。天然光线从大窗户的开口处漫过,在白色的内部柔和地发光;黑色和黄铜的口音为这个高雅的工匠商店增添了优雅的余韵。除了卡拉拉大理石外,还使用了非常精细的材料,如雪松木和黄铜,为烘焙产品创造了理想的条件。因为这些材料鼓励“制作面包的乡村和工匠方面。”

                            
照片(Spyros Paloukis)
着色的雪松木板已被用作两面的外部包层;这渗透了一种工艺感,以及一种朴素的环境,尽管它的外观现代优雅。雪松木材被一个黑色粉末涂层钢窗框刺穿在最长的外墙上,向外延伸到商店的外壳之外。这样做是为了创造额外的座位空间。。。给想坐在面包店外面的顾客。

                            
照片(Spyros Paloukis)
此外,白色的长方形皇家莫萨瓷砖装饰了这家面包店的墙壁,而汤姆·迪克森的黑色“拍打”吊灯则是这个可爱的室内装饰。欧洲橡木面包架、定制柜台和手推车展示了传统的面包店环境。虽然精心挑选的金属椅子由泽维尔鲍查德在埃德莎的主要步行街上,创造了非常传统和精致的整体气氛。

                            
照片(Spyros Paloukis)

                            
照片(Spyros Paloukis)

                            
照片(Spyros Paloukis)

                            
© Studioprototype

                            
照片(Spyros Paloukis)

                            
© Studioprototype
建筑师:Studio原型建筑师//SofiaLimpari和NealShah地点:Edessa,希腊客户:Elektra面包店,Edessa地区:35平方米,完工日期:2009
好的东西都是小包装的,或者我应该说是商店!设在希腊的StudioPrototype公司最近完成了在希腊Edessa一家家庭经营的面包店的翻修工作。发现温暖的传统但优雅的面包店只有@Yatzer。

举报

新经典

什么也没写

1897 作品/ 0 人气

  • 别默默的看了,快登录帮我评论一下吧!:)

    注册 登录

    更多评论

    推荐作品


    相关文章

    下载

    加入到画夹管理

    添加画夹

    提示

    右键保存、高清大图仅支持VIP会员
    名师作品集【专享】
    全网名师最多、更新最快、作品最全
    作品库【无限查阅、一键下载】
    全球最大室内作品库,超33万部
    精品资料【下载】
    全年精品资料更新超1000部
    灵感搜索【原图下载】
    中文搜索全球顶尖案例灵感图
    设计师生活馆【内购价】
    5大电商平台官方合作,专享内购价
    CAD库【模型下载】
    cad单体模型库精准搜索查找下载
    免广告打扰【屏蔽】
    屏蔽全站广告,享受纯净体验
    3D模型【送199币值199元】
    分享全网最新精品3D模型
    名师与资料完善后,价格涨至699元/年