Green Renovation by Vo Trong Nghia offers verdant urban living
2014-08-03 15:00
攀岩植物生长于越南Vo Trong Nghia Architect公司在河内这座翻修过的房子前面的钢架上(幻灯片)。
Vo Trong Nghia摄
考虑到越南快速的城市发展,Vo Trong Nghia建筑师想要创造一个如何将绿色植物重新融入城市的例子。
河内市中心一栋阴暗、潮湿、有15年历史的房屋需要翻新,为工作室提供了一块画布,以展示整个大都市的类似房产是如何以树叶和光线复苏的。
Vo Trong Nghia摄
建筑师们说:“绿色秋天的装修是在这样的背景下设计的,它把绿色植物送回城市,并鼓励居民和邻居都有一个舒适的居住环境。”
Vo Trong Nghia摄
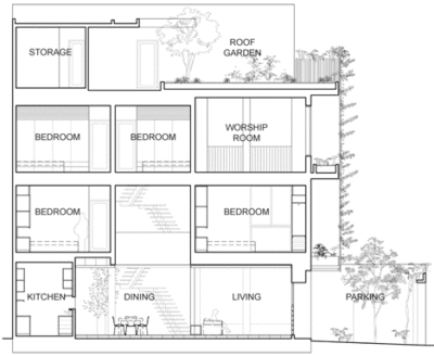
位于长方形角落的地块上,建筑物较短的一侧面对着一条主街,而较长的边缘则沿着一条小巷延伸。
一个镀锌的钢丝网被包裹在这些垂直的正面,覆盖中间两层的格子,供攀援植物生长和跨越。
“房子的特点是绿色立面名为绿色瀑布,一个令人愉快的绿色瀑布,从内部和外部都很有吸引力,”建筑师说。
植物区系隐藏在阳台和窗户后面,遮住房间的阴影,同时仍然允许光线透过。
建筑师解释说:“未使用的阳台被改造成植物的空间,保护了居民的隐私和安全。”“从室内看,每个房间都能欣赏到绿色的景色,并通过它呼吸新鲜空气。”
在一楼,一个金属车库快门和匹配的大门提供进入一个封闭的无屋顶停车场在房子前面。
从外面的门通向开放式的居住和就餐区,从那里可以进入厨房和酒店后面的洗手间。
建筑师们说:“一楼是用来在下面安装通风层的,以防止潮湿和凝结的上升,这是汉诺安房屋在季节交替时经常出现的问题。”
天花板上覆盖着木制的石板,这些石板贯穿着房间的长度,这些石板通过玻璃砌块自然照明,并从两个三角形的轻型水井向下照射。
这些中庭利用相邻建筑的角墙所创造的尴尬空间,种植了更多的绿色植物。
原来的砌块混凝土楼梯已经被一个细长的钢结构所取代,它在更大的光井旁上升,内衬有纹理的大理石。
餐厅上方有一个双高的空间,让居民们可以从上面地板上的书房向下看。
第一层还有两间卧室,一间在阳台的两边,还有一间浴室。
站点计划-单击以获得更大的图像
在上面的地板上发现了另外两个卧室、另一个浴室和一个用于礼拜或额外睡眠空间的大型多用途房间。
一楼平面图-单击更大的图像
楼梯一直延伸到屋顶露台,在那里,外面的格子形成了一个栏杆,围绕着花园里的蔬菜、鲜花和一棵树。
一楼平面图-点击以获取更大的图像
屋顶覆盖着储存空间,发电机房延伸到种植旁边的一个座位区。
二楼平面图-点击以获取更大的图像
“这种绿色立面和屋顶系统是典型的,适用于热带气候的所有建筑物,”建筑师说。
屋顶图-点击以获得更大的图像
“这可能是在热带国家实现潜在绿色城市的种子,为它们严重的城市问题提供解决方案。”
长段-点击获取更大的图像
Vo Trong Nghia在越南的许多住宅设计中加入了植物。
西北高程-点击获取更大的图像
在胡志明市的工作室设计的一座住宅的立面上,十几层混凝土种植园形成了一个垂直花园,而广宁省的一座螺旋形石屋则以覆盖着草的屋顶为特色。
西南高程-点击获取更大的图像
摄影作品是由小木平行拍摄的,除非另有说明。
项目信贷:建筑师公司:Vo Trong Nghia Architect首席建筑师:Vo Trong Nghia,Takashi Niwa,Tran Thi HangProject Architect:NGO Thuy Duong,一个越南Dung承包商:风水屋JSC。
阅读更多建筑越南住宅翻新介绍Vo Trong Nghia越南房屋河内
在越南Vo Trong Nghia Architect公司位于河内的这座房子的翻修前,钢架上种植着植物。

PintereAI








