Umwelt bases boxy office block in southern Chile on Le Corbusier housing model
2016-03-19 21:00
这个瓦楞纸金属和混凝土办公大楼由圣地亚哥工作室乌姆韦尔特有一个板和框架结构模型的勒柯布西耶的MaisonDOM-ino原型定制住房(幻灯片)。
UMWELT的结构是由预制钢筋混凝土构件的系统制成的,更典型的是用来建造停车场,并且用黑色铝锌钢板包覆。
一系列的柱子环绕着楼板的周长,形成了一个通畅的平面图,并在这座长长的建筑的两端形成了一个2.25米的悬臂。
该设计基于现代主义建筑师勒克斯布西耶的1914年MaisonDOM-ino,这是一个质量屋的原型,其中楼板由外围柱支撑,以创建一个灵活的楼层平面。
在威尼斯建筑双年展(威尼斯建筑双年展2014)上,德国建筑师瓦伦丁·邦特杰斯·范贝克(ValentinBontjesvanBeek)和来自建筑协会的学生们建造了这座房子的
“只有两堵墙在服务区完成结构的支撑,”乌姆韦尔特建筑师解释说,他说,该系统有助于缩短施工时间。“这个系统可以理解为适应地震背景的多米诺模型,将柱子变成小墙。”
他们补充道:“该系统允许现场优化施工,将结构构件的组装时间限制在几个星期之内,但它也决定了建筑的特点,包括跨度、模块、高度和重要性。”
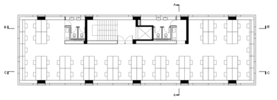
名为Integra大楼的四层建筑充满了一个又深又窄的场地,形成了一个长30.5米、宽9.2米的规划。柱子之间设置了全景窗口,以最大限度地利用办公室的自然光。
它位于奥索诺(Osorno)的一个居民区。奥索诺是智利南部的一个小城市,周围是农田,是该国最大的奶牛场的所在地。该办公室的租户是一群为牛奶行业提供服务的公司。
乌姆韦尔特的创始人阿图罗·谢德格尔(Arturo Scheidegger)和伊格纳西奥·加西亚(Ignacio García)对Dezeen表示:“办公市场非常萎缩,“他们的选择是住在习惯很差的老房子里,或者住在大公司的玻璃建筑里。”
“这些选择都不符合他们的工作方式和他们所需要的形象,”他们补充说。“这就是为什么他们选择根据自己的具体需求,在一个非常安静的街区投资一栋建筑。”
在内部,下面三层被分割成三个纵向条。沿着东面的第一条街道把浴室、厨房和楼梯井都放在了计划的一边。
第二层是位于规划中心的狭窄的开放走廊,第三条是主办公空间,位于西面,尽可能多地受益于该市“隐约的阳光”。
四楼是唯一偏离这种分段布局的楼层。在这里,一个会议室与毗邻的露台是放在对面的宽度的北面。
总部位于圣地亚哥的乌姆韦尔特于2011由智利建筑师伊格纳西奥·加西亚·帕塔里奥和阿图罗·谢德格尔共同创立。
这对夫妇还翻修了圣克里斯托巴尔山的一个类似地堡的电视传输中心,该中心是由多孔混凝土和白色钢架组成的覆盖板,以种植、天窗和半透明窗帘为特色。
摄影是由费利佩·丰特西拉拍摄的。
项目贷项:
建筑师:乌姆韦特团队:Arturo Scheidegger和García Partarrieu结构:Leiva Ingeniería Construction:Constructora Rudloff
施工图-点击以获得更大的图像
站点计划-单击以获得更大的图像
地下室平面图-点击更大的图像
底层平面图-点击获取更大的图像
一楼平面图-点击以获取更大的图像
二楼平面图-点击以获取更大的图像
三楼图则-按一下以取得更大的影像
第1节–单击更大的图像
第二节-点击更大的图像
阅读更多建筑混凝土办公室智利勒柯布西耶斯利德斯豪斯乌姆韦尔特
这座由乌姆韦尔特设计的写字楼有一个以勒柯布西耶的MaisonDOM-ino模型为模型的可定制房屋的楼板和框架结构。

PintereAI








