BASE Komada Architects Office

2013-02-13 00:00
 © Tomohiro Saruyama
(佐山友一郎)
架构师提供的文本描述。这个项目是从客户的“我们需要我们自己的基地”这句话开始的。艺术活动策划办公室在一楼,二楼或三楼是住宅。它是一间办公室和一栋房子的小综合体,建在33平方米的场地上。
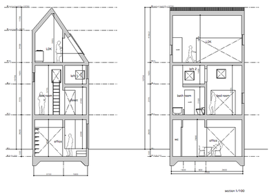
Text description provided by the architects. This project started from such words of the clients "we need to have our own base."  The art-event planning office is at the first floor and the 2nd or 3rd floor are dwellings .  It is a small complex of a office and a house, built on the site 
 © Tomohiro Saruyama
(佐山友一郎)
在一楼,办公室向城镇开放,在三楼,居住空间向天空开放,在二楼,私人空间是复杂而亲密的,但并不是封闭的。以及穿过这些楼层的楼梯箱。
On the first floor,office opens to the town,on the 3rd floor ,living space opens to the sky and on the 2nd floor ,private space is complicated and intimate but not closed. And the stair case which pierces through these floors .  
 © Tomohiro Saruyama
(佐山友一郎)
这座法律法规允许的最大体积的小建筑,就像他们生活的基地,他们保护自己,与他人交往,赚取乳制品,与大自然联系,凝视自己。
This small building of the maximum volume allowed on laws and regulations is a place like a base of living where they protect themselves, associate with others, earn their dairy bread, connect to the nature, and gaze themselves. 
 
 
 
 
 
 
 
 
 
 
 
 
 
 
 
 
Architects Komada Architects' Office
Location Setagaya, Japan
Category Houses
Architect in Charge Takeshi Komada,Yuka Komada
Area 0.0 m2
Project Year 2012
Photographs Tomohiro Saruyama

                    

举报

梅山君

什么也没写

1980 作品/ 0 人气

  • 别默默的看了,快登录帮我评论一下吧!:)

    注册 登录

    更多评论

    推荐作品


    相关文章

    下载

    加入到画夹管理

    添加画夹

    提示

    右键保存、高清大图仅支持VIP会员
    名师作品集【专享】
    全网名师最多、更新最快、作品最全
    作品库【无限查阅、一键下载】
    全球最大室内作品库,超33万部
    精品资料【下载】
    全年精品资料更新超1000部
    灵感搜索【原图下载】
    中文搜索全球顶尖案例灵感图
    设计师生活馆【内购价】
    5大电商平台官方合作,专享内购价
    CAD库【模型下载】
    cad单体模型库精准搜索查找下载
    免广告打扰【屏蔽】
    屏蔽全站广告,享受纯净体验
    3D模型【送199币值199元】
    分享全网最新精品3D模型
    名师与资料完善后,价格涨至699元/年