Residence in Keisen Masao Yahagi Architects
2013-02-26 01:00
© Koichi Torimura
c.Torimura幸一
这座一层的木屋位于福冈郊区的新住宅区。新的住宅用地被划分为区域内的平均面积和形状的长方形(这一地区几乎为300平方米)。有南路的场地比有北路的场地更有价值。这是日本典型的小规模发展.街道两边的场地因严格的分割规则而相互面对,即使是在这种情况下,这座房子的目的也是为了同时确保开放和隐私。
This one story wooden house is located at new residential area in a suburb of Fukuoka. New housing lots was divided to average area in region and shaped rectangle (almost 300m2 in this area). A site with southern road has more value than a site with northern road. It is the typical small-scale development in Japan. The sites of both sides of the street face each other because of the rigid division rules.This house aimed to ensure openness and privacy at the same time even in that circumstance.
Courtesy of Masao Yahagi Architects
由Masao Yahagi建筑师提供
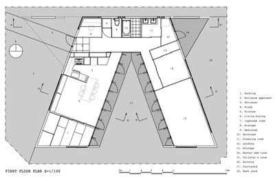
客户要求提供三个外部空间:停车场、庭院和街道上隐藏的干燥洗衣空间。V形计划作为最简单的形式,同时满足了它们的要求。V形房屋不面向邻居,公共空间在西侧,私人空间在东侧。作为结构的鳍排列在院子的两边。由这些鳍,内部空间很难从街道上看到,但家庭之间的公共空间和私人空间之间,通过庭院的东西方向。
The Clients requested three outer spaces: parking, a courtyard, and a hidden drying laundry space from the street. V-shaped plan was satisfied them simultaneously as the simplest form. V-shaped house does not face with neighbors, the common spaces are in the west side, and the private spaces are in the east side. The fins as structure are lined on the both side of the courtyard. By these fins, the interior space is difficult to see from the street, but family has sight between common space and private space through the courtyard the east-west direction.
© Koichi Torimura
c.Torimura幸一
虽然该结构基本上是日本传统的木结构,但由于经济原因,2×4维梁。东、西木质施工方法相互融合。
Although the structure is basically Japanese traditional wooden construction, 2×4 dimension beams because for economical reason. The east and west wooden construction methods are blended.
© Koichi Torimura
c.Torimura幸一
50 mm×390 mm柱夹2根2×4维梁。中间空间用于照明箱,导轨用于滑动门.室内空间由小型和平组合而成,便于建造和人体尺度。
The columns of 50mm×390mm are sandwiched by two of 2×4 dimension beams. The in-between space is used for lighting box, guiderail for sliding doors. The interior space are assembled by small peace that allow easy construction and human scales.
Architects Masao Yahagi Architects
Location Fukuoka, Japan
Category Houses
Area 134.77 sqm
Project Year 2008
Photographs Koichi Torimura

PintereAI








