Makan Place PNEUARCH
2015-09-17 17:00
© Jack Lovel
C.Jack Lovel
架构师提供的文本描述。马坎之地是英国殖民时期的马六甲古城。马六甲的华人居民主要是马六甲人,形成了传统民居的规范,殖民地政府增加了一种欧洲风格的气息,这种风格与城市白话建筑的实际文化描绘交织在一起。古马六甲传统空间的形成包括一个五英尺长的通道、一个过渡性入口和一个内部庭院,带有欧洲的精髓。这些特征来自不同的文化,创造了一个复杂的混合标准居住地。
Text description provided by the architects. Makan Place is an interpretation Old Malacca during British colonialisation. With mainly Chinese-Malay inhabitants in Malacca that formed the norm of traditional dwelling, the Colonial government added a touch of European style that intertwined with the implemented cultural depiction of the city’s vernacular architecture. The formulation of traditional space in Old Malacca consists of a ‘five-foot-way’, transitional entrance and an internal courtyard, with a hint of European essence. These features from differing cultures create a blend of sophistication to the standard residency.
© Jack Lovel
C.Jack Lovel
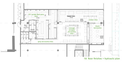
Floor Plan
© Jack Lovel
C.Jack Lovel
马肯广场强调的是“五英尺路”,这是马六甲州长斯坦福德·莱佛尔斯爵士规定的马来亚商店房屋的一个独特特色,即有保护行人免受炎热的热带阳光和雨水侵袭的人行道。餐厅入口处采用了这一独特的特点,即在进场时形成悬念和耐心。现代的马来西亚前厅通过广泛使用木材在各种不同的色调,以及倾斜和百叶窗的框架内和外部的看法,作为一种形式的辩证风格的客户和空间,介绍了温暖的气氛。墙壁中有一个错综复杂的主题,在整个餐厅中反复出现,以描绘欧洲影响力的渴望。
Makan Place emphasises on the ‘five-foot-way’, which was a unique feature of Malaya’s shop houses that was stipulated by Sir Stamford Raffles, the governor of Old Malacca, to have walkways that protect pedestrians from the hot tropical sun and rain. The restaurant’s entrance adopts this distinct characteristic as to shape suspense and patience upon entering. The modern Malaysian vestibule provides an introduction to the warm ambience through the extensive use of timber in various shades, as well as tilt-up and louvered windows that frame the interior and exterior views as a form of dialectic style between customers and the space. Amongst the walls is an intricate motif that is repeated throughout the restaurant, to portray the aspiration of European influence.
© Jack Lovel
C.Jack Lovel
木柱的触觉性及其自然老化的木纹图案,增强了马六甲传统的历史文化氛围。中央庭院类似于不同地板材料的过渡,增加了天花板的高度,进一步凸显了殖民主义的氛围。
The tactility of timber columns with its natural aged wood grain pattern enhances the traditional atmosphere of Malacca that is embedded in its history and culture. The central courtyard is resembled through the transition of different flooring material, with increased ceiling height to further accentuate the colonialist ambience.
© Jack Lovel
C.Jack Lovel
Architects PNEUARCH
Location Werribee St, Werribee VIC 3030, Australia
Category Interiors Architecture
Design Team Nelson Lee, Thomas Khoo, Arfann Ali, Kate Chew, Joe Ng
Area 300.0 sqm
Project Year 2015
Photographs Jack Lovel

PintereAI








