Rangeland Laboratory Facility BVH Architecture
2018-03-26 15:00
© Paul Crosby
C.Paul Crosby
架构师提供的文本描述。该建筑群位于查德龙东南,位于一座小草草原的起伏小山上,为牧场、农业和野生动物项目提供了教学和办公空间,以及几个学生活动小组所需的设施。这两座独立但毗邻的建筑支持美国第二大牧场管理项目。实验室设施包括动物科学实验室、植物和土壤科学实验室、教室、范围内的植物标本馆教学集合和其他辅助教员工作领域。
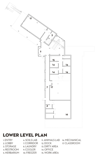
Text description provided by the architects. Remotely located to the southeast of Chadron atop a rolling hill of short-grass prairie, the building complex provides much-needed facilities for instructional and office spaces for the Rangeland, Agriculture and Wildlife Program, as well as several student activity groups. The two separate but adjacent buildings support the second largest rangeland management program in the United States. The laboratory facility houses the animal science laboratory, a plant and soil science lab, classrooms, a range herbarium teaching collection and other supporting faculty work areas.
© Paul Crosby
C.Paul Crosby
该遗址利用传统牧场设施的组织线索,沿着两个轴线排列其结构,形成自然防风林,并利用季节性太阳和自然地形。该网站认识到人类和建筑环境对更大的生态系统的影响,利用了一些经验和可持续的方法,包括地热、太阳能和风能,展示了牧场管理的负责任做法,这些做法可以应用于一个工作的牧场。
The site takes organizational cues from traditional ranching facilities, aligning its structures along two axes to form a natural windbreak and take advantage of seasonal sun and the natural topography. Recognizing the effect humans and the built environment have on the larger ecosystem, the site utilizes a number of experiential and sustainable methods, including geothermal, solar and wind power, to demonstrate responsible practices for rangeland management that can be applied to a working ranch.
© Paul Crosby
C.Paul Crosby
Exploded Axonometric
爆炸轴测
© Paul Crosby
C.Paul Crosby
使用熟悉的材料,如金属覆盖墙,雪松木墙板,板式混凝土和节拍的暴露木材结构,使该设施的生活和文化背景,在牧场和农业传统。天然光过滤器穿过主要流通走廊通过玉米床壁板,结束在玻璃墙提供了一个视野在不断扩大的地形。从活动物设施往西看,有一棵有盖的乔木,通向实验室的南入口。通过这种方式将实验室空间和通道与景观连接起来,使建筑的体验几乎与周围的草原一样频繁地发生变化。
The use of familiar materials such as metal-clad walls, cedar wood siding, board-formed concrete and the rhythm of the exposed wood structure lend life and cultural context to the facility’s roots in the ranching and agricultural tradition. Natural light filters across the main circulation corridor through corncrib siding, terminating in a glass wall offering a view out across the expanding terrain. The westward view from the Live Animals Facility features a covered arbor leading to the southern entrance of the Laboratory. Connecting lab spaces and passageways to the landscape through materiality in this way allows the experience of the building to change nearly as frequently as the surrounding prairie.
© Paul Crosby
C.Paul Crosby
Architects BVH Architecture
Location Chadron, NE 69337, United States
Architect in Charge Mark Bacon, AIA, Project Manager: Dennis Coudriet, AIA
Area 15800.0 ft2
Project Year 2015
Photographs Paul Crosby
Category Other Facilities
Manufacturers Loading...

PintereAI








