OP9 House Office 88

2018-11-14 17:00
 © Katherine Lu
(C)卢凯瑟琳
架构师提供的文本描述。该住宅位于一个新建立的郊区社区,其目的是通过其材料和方向创造一个平静和宁静的气氛。该项目的主住宅面积为350平方米,后面还有一栋“小弟弟”二级住宅。这两套住宅之间有一道弯曲的墙,用来环绕游泳池。
Text description provided by the architects. The home is situated in a newly established suburban neighbourhood, with the intent of creating a calm and serene atmosphere through its materials and orientation. The project features a 350m2 main dwelling with a ‘little brother’ secondary dwelling tucked away at the back of the site. The two dwellings are separated by a curved wall that extends to wrap around a swimming pool.
Text description provided by the architects. The home is situated in a newly established suburban neighbourhood, with the intent of creating a calm and serene atmosphere through its materials and orientation. The project features a 350m2 main dwelling with a ‘little brother’ secondary dwelling tucked away at the back of the site. The two dwellings are separated by a curved wall that extends to wrap around a swimming pool.
 © Katherine Lu
(C)卢凯瑟琳
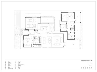
 Ground floor plan

                            
 © Katherine Lu
(C)卢凯瑟琳
主住宅的入口是一个宏伟的、双层的门厅,通向宽敞的开放式厨房、客厅和用餐区。这些区域溢出到了一个朝北的庭院里,有一个游泳池,在室内和室外区域之间创造了一个无缝的透明度。厨房的特征是一个弯曲的雕塑岛,在游泳池周围形成了弯曲的墙壁。温和的调色板和地板材料的变化有助于微妙地表示在家庭的不同区域内的编程变化。大的空隙空间使得在地面和上层之间能够有更大的连接。上层包含有四个卧室的休息区。主套房配有套房和步入式浴袍。游泳池的视图通过全高度窗口将上层连接到室外。
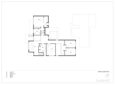
Entry to the main dwelling features a grand, double height foyer, which leads into a spacious open plan kitchen, living and dining area. These areas spill out onto a north-facing courtyard with a swimming pool, creating a seamless transparency between the indoor and outdoor areas. The kitchen features a curved sculptural island that plays on the curved wall forming around the pool. A warm muted palette and changes in floor material help to subtly signify programmatic changes within different areas of the home. Large void spaces enable a greater connection between the ground and upper floor. The upper floor contains a sitting area with four bedrooms. The master suite features an en-suite and walk-in robe. Views of the swimming pool via full height windows join the upper floor to the outdoors.
Entry to the main dwelling features a grand, double height foyer, which leads into a spacious open plan kitchen, living and dining area. These areas spill out onto a north-facing courtyard with a swimming pool, creating a seamless transparency between the indoor and outdoor areas. The kitchen features a curved sculptural island that plays on the curved wall forming around the pool. A warm muted palette and changes in floor material help to subtly signify programmatic changes within different areas of the home. Large void spaces enable a greater connection between the ground and upper floor. The upper floor contains a sitting area with four bedrooms. The master suite features an en-suite and walk-in robe. Views of the swimming pool via full height windows join the upper floor to the outdoors.
 © Katherine Lu
(C)卢凯瑟琳
该项目使用当地来源的白色砖瓦和灰泥,为房屋的线性和现代形式提供了雕塑元素。黑色的砖块特征被用作与悬臂砖块的对比,作为颜色和阴影上的游戏。主卧室悬臂在车库区域和特点是一个醒目的黑色砖块的条纹,通过正面褪色,并增加了更多的刺激外观。
The project uses a locally sourced white brick and mortar that provides a sculptural element to the linear and contemporary form of the home. Black-bricked features were used as a contrast to the cantilevered bricks as a play on colour and shadow. The master bedroom cantilevers over the garage area and features a striking black-bricked stripe through the facade which fades off and adds further excitement to the façade.
The project uses a locally sourced white brick and mortar that provides a sculptural element to the linear and contemporary form of the home. Black-bricked features were used as a contrast to the cantilevered bricks as a play on colour and shadow. The master bedroom cantilevers over the garage area and features a striking black-bricked stripe through the facade which fades off and adds further excitement to the façade.
 First floor plan
一楼平面图
住宅的北方位允许家庭全天充满光,并且通过聚碳酸酯柱遮蔽大的玻璃进入物,该聚碳酸酯柱允许光通过玻璃窗进入,同时将其从热中屏蔽。在下午,柱子变成一个充满光的盒子,晚上可以照亮,照亮夜空的入口。
The dwelling’s northern orientation allows the home to be filled with light throughout the day and the large glazed entry is shielded from the western-sun by a polycarbonate column which allows light to enter through the glazing whilst shielding it from the heat. The column becomes a light-filled box during the afternoon and can be illuminated in the evening to light up the entry against the night sky.
The dwelling’s northern orientation allows the home to be filled with light throughout the day and the large glazed entry is shielded from the western-sun by a polycarbonate column which allows light to enter through the glazing whilst shielding it from the heat. The column becomes a light-filled box during the afternoon and can be illuminated in the evening to light up the entry against the night sky.
 © Katherine Lu
(C)卢凯瑟琳
 
 
 
 
 
 
 
 
 
 
 
 
 
 

                    

举报

24个我

什么也没写

1819 作品/ 0 人气

  • 别默默的看了,快登录帮我评论一下吧!:)

    注册 登录

    更多评论

    推荐作品


    相关文章

    下载

    加入到画夹管理

    添加画夹

    提示

    右键保存、高清大图仅支持VIP会员
    名师作品集【专享】
    全网名师最多、更新最快、作品最全
    作品库【无限查阅、一键下载】
    全球最大室内作品库,超33万部
    精品资料【下载】
    全年精品资料更新超1000部
    灵感搜索【原图下载】
    中文搜索全球顶尖案例灵感图
    设计师生活馆【内购价】
    5大电商平台官方合作,专享内购价
    CAD库【模型下载】
    cad单体模型库精准搜索查找下载
    免广告打扰【屏蔽】
    屏蔽全站广告,享受纯净体验
    3D模型【送199币值199元】
    分享全网最新精品3D模型
    名师与资料完善后,价格涨至699元/年