bAAn Anonym
2018-12-27 00:00
架构师提供的文本描述。大家庭的新房子与业主的老房子位于同一处房产上。这两个住宅是平行的方向,被一个游泳池隔开,游泳池作为最初居住计划的一部分而存在。这一公共区域也连接了这两个住宅之间的视觉鸿沟,同时也对此作出了贡献。
Text description provided by the architects. The new house for an extended family is located on the same property as the owner's old home. The two residences stand in a parallel orientation and are separated by a swimming pool, which exists as a part of the original residential program. This communal area also connects, and at the same time contributes, to the visual divide between the two residences.
Text description provided by the architects. The new house for an extended family is located on the same property as the owner's old home. The two residences stand in a parallel orientation and are separated by a swimming pool, which exists as a part of the original residential program. This communal area also connects, and at the same time contributes, to the visual divide between the two residences.
© Chaovarith Poonphol
(Chaovarith Poonphol)
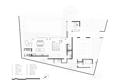
First Floor Plan
一层平面图
© Chaovarith Poonphol
(Chaovarith Poonphol)
它减少了节目的拥堵,并允许家庭成员相互观看和互动。周围是绿树成荫的树木和花园,除了西面的一堵墙外,这个空间还包括来自各个方向的肉质。
It lessens the congestion of the program and allows for the family members to see and interact with each other. Surrounded by the green of the trees and garden, the space embraces the succulence from all directions except for the west- facing a wall.
It lessens the congestion of the program and allows for the family members to see and interact with each other. Surrounded by the green of the trees and garden, the space embraces the succulence from all directions except for the west- facing a wall.
© Chaovarith Poonphol
(Chaovarith Poonphol)
卫生间和储藏室的配置有助于过滤下午的热量和有意。外露混凝土被引入,以反映业主/品味和偏好的圆滑和简单。黑色铝板包裹外墙,以最大限度地隐私,而自然光和风仍然允许他们的存在,在房子内。
The allocation of restrooms and storage rooms that help to filter the afternoon heat and intentional. Exposed concrete was brought in to reflect the owners/ taste and preference for sleekness and simplicity. Black aluminum panels wrap the exterior wall to maximize privacy while natural light and wind are still allowed to make their presence within the house.
The allocation of restrooms and storage rooms that help to filter the afternoon heat and intentional. Exposed concrete was brought in to reflect the owners/ taste and preference for sleekness and simplicity. Black aluminum panels wrap the exterior wall to maximize privacy while natural light and wind are still allowed to make their presence within the house.
© Chaovarith Poonphol
(Chaovarith Poonphol)
Second Floor Plan
二层平面图
© Chaovarith Poonphol
(Chaovarith Poonphol)
Architects Anonym
Location Bangkok, Thailand
Lead Architects Phongphat Ueasangkhomset, Parnduangjai Roojnawate
Area 500.0 m2
Project Year 2018
Photographs Chaovarith Poonphol
Category Extension
Manufacturers Loading...

PintereAI








