Library de Kimpel Adem Architecten

2019-01-13 09:00
工程AGB Bilzen-JC工程-Stubeco-Thijco更多规格少规格
Engineering AGB Bilzen - JC Engineering – Stubeco - Thijco More Specs Less Specs
Engineering AGB Bilzen - JC Engineering – Stubeco - Thijco More Specs Less Specs
 © Adem Architecten
C.Adem建筑
架构师提供的文本描述。新的毕尔岑图书馆是比尔岑娱乐场所德基佩尔综合改造项目的一部分。
Text description provided by the architects. The new Bilzen library is part of an integral renovationprogram for the recreation site De Kimpel in Bilzen.
Text description provided by the architects. The new Bilzen library is part of an integral renovationprogram for the recreation site De Kimpel in Bilzen.
 © Adem Architecten
C.Adem建筑
该网站设计的总体规划提供了一个新的图书馆的战略发展,将现有图书馆重新分配到办公室和展览空间,翻修大厅和Kimelkaffee,以及建造一个新的青年中心。
The designed masterplan for this site provides for the strategic development of a new library, a reallocation of the existing library into offices and exhibitionspace, a refurbishment of the lobby and the KimpelKaffee as well as the construction of a new youthcenter.
The designed masterplan for this site provides for the strategic development of a new library, a reallocation of the existing library into offices and exhibitionspace, a refurbishment of the lobby and the KimpelKaffee as well as the construction of a new youthcenter.
 © Adem Architecten
C.Adem建筑
图书馆的设计是该网站的试点项目,最终改变了娱乐中心的面貌。与现有的架构不同,它决定与环境、透明的空间和清晰的架构进行强有力的交互。
The design of the library is the pilot project on this site and finally changes the face of the recreation center. In contrast to the existing architecture, it was decided to have a strong interaction with the environment, transparent spaces and a clear architecture.
The design of the library is the pilot project on this site and finally changes the face of the recreation center. In contrast to the existing architecture, it was decided to have a strong interaction with the environment, transparent spaces and a clear architecture.
 
 
不仅丰富的藏书在这里找到了一个新的地方。图书馆主要是一个体验中心,在那里创造了教育、会议和最广泛感官体验的空间。
Not only the rich literarycollection has found a new place here. The library is primarily an experience center where space has been created for education, meeting and experience in the broadest sensory sense.
Not only the rich literarycollection has found a new place here. The library is primarily an experience center where space has been created for education, meeting and experience in the broadest sensory sense.
 © Adem Architecten
C.Adem建筑
图书馆的内部是为用户设计和组织的,围绕着5个主题岛屿。爵士乐比尔岑是比利时最早的大型音乐节之一,它仍然是比尔岑周围人民的集体DNA的一部分。因此,第一个主题岛变成音乐并不令人惊讶。这之后是文学
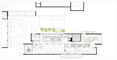
The interior of the library is designed and organized for its users around 5 themed islands. Jazz Bilzen was one of the first major festivals in Belgium and is still part of the collective-DNA of the people off Bilzen. It is therefore not surprising that the first theme island has become music. This is followed by literature & poetry in a readingsalon, lifestyle and sport in and around a zenspace, art and architecture in the studio of designclassics and finally traveling with windows to the world.
The interior of the library is designed and organized for its users around 5 themed islands. Jazz Bilzen was one of the first major festivals in Belgium and is still part of the collective-DNA of the people off Bilzen. It is therefore not surprising that the first theme island has become music. This is followed by literature & poetry in a readingsalon, lifestyle and sport in and around a zenspace, art and architecture in the studio of designclassics and finally traveling with windows to the world.
 © Adem Architecten
C.Adem建筑
“Tesi samanunga is Edele unde scona”是荷兰语中保存最久的句子之一,保存在(Munster)Bilzen修道院。“这个藏品是高尚而美丽的”是这个图书馆最合适的口号。为了纪念和更新过去的现在,一个文学博物馆已经整合到图书馆。
"Tesi samanunga was edele unde scona" is one of the oldest preserved sentences in Dutch and is kept in the abbey of (Munster)Bilzen. "This collection is noble and beautiful" could not be a more appropriate slogan for this library. As a tribute and to update the past in the present, a literary museum has been integrated into the library.
"Tesi samanunga was edele unde scona" is one of the oldest preserved sentences in Dutch and is kept in the abbey of (Munster)Bilzen. "This collection is noble and beautiful" could not be a more appropriate slogan for this library. As a tribute and to update the past in the present, a literary museum has been integrated into the library.
经验比言语更能说明问题。我们邀请您来参观图书馆和德基佩尔网站。
Experience says so much more than words. We invite you to come and discover the library and the De Kimpel site.
Experience says so much more than words. We invite you to come and discover the library and the De Kimpel site.
 
 
 
 
 
 
 
 
 
 
 
 
 
Architects Adem Architecten
Location Eikenlaan 25, 3740 Bilzen, Belgium
Lead Architects Adem architecten bv bvba – Donald Nijssen - Maarten Van Eyck
Area 1.9 m2
Project Year 2015
Photographs Adem Architecten
Category Library
Manufacturers Loading...

                    

举报

24季

什么也没写

1844 作品/ 0 人气

  • 别默默的看了,快登录帮我评论一下吧!:)

    注册 登录

    更多评论

    推荐作品


    相关文章

    下载

    加入到画夹管理

    添加画夹

    提示

    右键保存、高清大图仅支持VIP会员
    名师作品集【专享】
    全网名师最多、更新最快、作品最全
    作品库【无限查阅、一键下载】
    全球最大室内作品库,超33万部
    精品资料【下载】
    全年精品资料更新超1000部
    灵感搜索【原图下载】
    中文搜索全球顶尖案例灵感图
    设计师生活馆【内购价】
    5大电商平台官方合作,专享内购价
    CAD库【模型下载】
    cad单体模型库精准搜索查找下载
    免广告打扰【屏蔽】
    屏蔽全站广告,享受纯净体验
    3D模型【送199币值199元】
    分享全网最新精品3D模型
    名师与资料完善后,价格涨至699元/年